电话:16620112999 全天侯 值班手机号:13925129509(微信同号)
QQ:540013019
联系人:丁生、陈生
邮箱:xwdepo@163.com
地址:广州市白云区齐富路1号正阳大厦1709室/花都地址:新雅街临南河路6号之二702
请扫描下面的二维码咨询
公司介绍:一家集研发、生产、销售为一体的高新技术企业。因区域发展需要现转让三室。
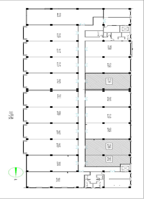
【面积】净化室、化验室、办公室三室总面积379.86㎡,其中十万级净化车间及万级化验室总面积231.36㎡,办公室及库房面积148.5㎡ 。
【设备说明】车间及三个化验室(无菌室、微生物限度室、阳性对照室)分别配置独立的空调机组,同时配有供其使用的纯化水制水设备。
【库房说明】原材料库、包材库、成品库、留样库、危化品库及一大间经营库(可做会议室或总经理室)
【图片参考】图一为三室位置分布图,图二为车间及实验室平面图,图三为办公室及库房平面图以及车间部分图片
联系人: 黄小姐 186 2093 0309
![]()





欢迎 你 发表评论: